Lambda Nu’s Chapter House – the last 10 years
In 2002, following an expensive year of repairs, the Lambda Nu House Corporation met to discuss the future of Lambda Nu’s chapter house. The House Corporation observed that the majority of the repairs were not caused by abuse to the property, but by wear and tear – items such as the plumbing inside the walls leaking, circuit breakers that would frequently trip, and windows that were worn out. During the same time, the undergrads continued to request air conditioning, in order to keep the Chapter competitive with other Greek and University housing options. The House Corporation was also concerned with the building’s fire safety. All agreed that a plan needed to be developed to install fire sprinklers.
In 2003, Lambda Nu contracted with Morrissey Engineering to complete a building assessment. The building itself (foundation, exterior walls, load bearing walls, and roof) checked out fine. However, the mechanical systems did not. The electrical system of 600 amps was not enough to meet the modern-day needs. The plumbing systems were outdated and had out-lived their projected life. For example: the third floor bathroom would leak into the bathroom below, and then ultimately end up in the housemother’s suite and B1. It was noted that the steam/hot water heating system was not the most efficient system to heat the building. The house corporation continued to conduct needed repairs and planned for a capital campaign.

John Binning, 1945, and Mike Nikischer, 2014 break ground – officially starting the renovation project.
In November 2006 the unthinkable happened — a 4 a.m. fire started at Phi Kappa Tau at Nebraska Wesleyan, killing one student. The Phi Tau house did not have sprinklers. The House Corporation met and agreed the fire sprinklers must be installed for the safety of our bothers and pledges. In 2007, the University of Nebraska Board of Regents agreed and required all student housing (including Greek housing) be sprinkled by 2017.
The House Corporation hired a fraternity/sorority fundraising consulting firm in 2007 to set-up the campaign. A campaign committee was formed, with Dr. Joseph Skradski (Nebraska 1983), serving as Chairman. Brother Skradski and his team launched Lambda Nu’s Honoring Our Past: Ensuring Our Future campaign – with a goal to raise $1.6 million to renovate the chapter house. This renovation will include:
- installation of fire sprinklers,
- new fire alarm system,
- updated heating and new air conditioning system,
- new energy-efficient windows,
- new wireless internet and computer networking,
- new electrical system,
- new plumbing and bathrooms,
- new ‘suite-style’ room layout, and
- updated kitchen appliances, furniture and soft goods (such as window coverings).
Following one of the nation’s worst recessions in decades, Brother Skradski and his team pulled through in raising $1.25 million from 240 graduate brothers with more on the way. The House Corporation held an official ‘groundbreaking’ ceremony on February 4, 2011 and the first walls coming down on Monday, February 7. Brother Skradski and his team are continuing to raise the final $350,000 needed to finish the project. The Chapter House is scheduled to fully reopen for the first day of fall class in 2011.
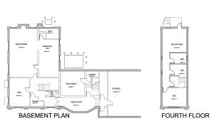
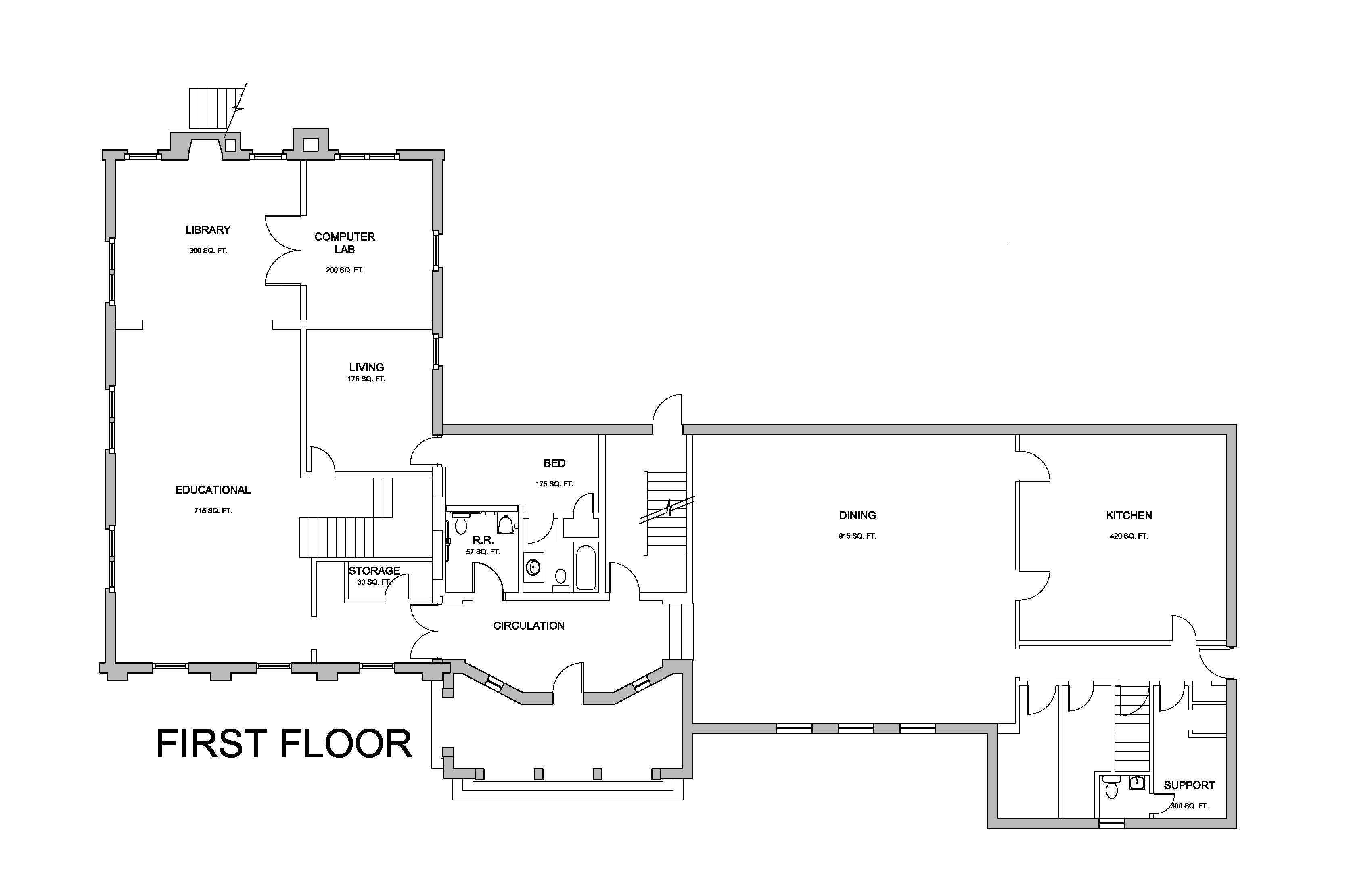
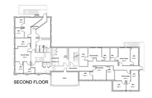
The floor plans (note: these are subject to change)
The new layout will include two or three bedrooms off a central study room, new bathroom design (with private showers) and additional study space.





Could you post the layout of the new house on here? It would be nice to see. My little brother is going to rush this summer and keeps asking me about the layout.
Keep up the good work!
Hi Drew — They are posted. They may change based on what the contractors find as they work on the project (I know there have already been a few slight changes on 3rd floor).
Great pictures and commentary on the project!
Looks great Eric!